Тепловая завеса Тепломаш КЭВ-6П2211Е серии 200 Комфорт
Завеса с электрическим нагревом (смесительного типа), особенностью является перфорированная лицевая панель с гладким полимерным покрытием белого цвета, корпус светло-серого. Забор воздуха происходит в передней части, во этому данная модель подойдет для установки в ограниченном пространстве. Высота монтажа до 2.5 метров. Тепловая завеса монтируется внутри помещения, подходит для установки в складских помещениях, гаражах, гостиницах, кафе, хостелах, пекарнях, торговых павильонах и др.

Особенности:
- Универсальный монтаж (горизонтально/вертикально)
- Функция защиты от низких температур (позволяет настроить диапазон включения и выключения завесы на обогрев при отрицательной температуре наружного воздуха)
- Автоматическое отключение при перегреве (срабатывает при нагреве выше 120° С).
- При закрытых дверях завесы могут использоваться как дополнительный источник тепла в помещениях
- В комплекте проводной пульт HL10 с защитой IP30 и встроенным термостатом + дистанционный пульт.
- Возможность управления группой завес с одного пульта (см. паспорт изделия).
- Защита от пыли и влаги корпуса IP20.
- Возможность подключения к охранно-пожарной сигнализации.
- Использование от сети 220В и 380В
- 3 режима работы (в периодическом и в непрерывном), возможно использовать в режиме вентилятора без нагрева в летний период.
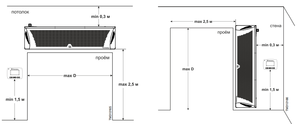
Способ монтажа:



Эффективная длина струи может служить оценкой допустимой ширины или высоты проема, который защищает завеса. При вертикальной установке завес с двух сторон проема, значение, следует понимать как полуширину. Параметр указан только для "мягких" наружных условий, т.е. температура воздуха не опускается ниже 0 °С, а скорость ветра не превышает 1м/с, приточно-вытяжная вентиляция сбалансирована. Любое ужесточение условий уменьшает эффективную длину струи на 50%.
- Гарантийные обязательства.pdf (201.44 KBytes)
- zavesy-series200.pdf (752.90 KBytes) - Описание серии 200 Комфорт
- Dekl_o_sootv.pdf (1.01 MBytes) - Декларация о соответствии
- passport_200Ekomfort.pdf (3.62 MBytes) - Руководство по эксплуатации и монтажу, технический паспорт, серия 200 Комфорт


























































































